带ISO上法兰三片体球阀  ★★★★
  • B35
  • 概述

    B35系列带ISO上法兰三片体球阀是全通径设计,适用于阻断各种空气、气体、水、油、液等无杂质介质。三片体设计使得维修方便,无需拆卸阀盖。这种阀门的对焊和螺纹焊备受欢迎。

    特点

    • 三片体紧凑式设计,便于现场维护全通径设计有更好的Kv/Cv
    • 精铸不锈钢铸件,表面细致
    • 防脱出阀轴
    • 可提供纯PTFE和25%碳纤维增强RPTFE阀座
    • 球槽内有减压孔
    • ISO5211整体上法兰,方便自动化
    • 用于球轴体的防静电装置

    连接标准螺纹BSPP-ISO228/1,对焊ISO1127
    公称直径1/2"-4"
    压力等级PN63 for 1/2"-2", PN40 for 2 1/2"-4"
    结构长度DIN3202 M3
    温度范围-20°C to +200°C
    操作装置手柄,气动头,电动头


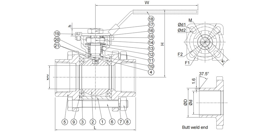
    No.零件名称材质
    1阀体CF8MCF8WCB
    2阀球SS316LSS304SS304
    3阀座PTFE,RPTFE
    4阀轴SS316LSS304SS304
    5阀盖CF8MCF8WCB
    6螺栓SS304
    7垫圈SS304
    8螺母SS304
    9阀体密封PTFE
    10止推垫圈PTFE,RPTFE
    11V型圈填料PTFE,RPTFE
    12密封压盖SS304
    13碟簧SS304
    14螺母SS304
    15定位锁片SS304
    16垫圈SS304
    17螺母SS304
    18手柄SS304
    19定位螺栓SS304
    20O型密封圈FPM
    21防静电装置SS304


    尺寸dDHLW安装用法兰阀轴重量(kg)
    DN英寸ISO5211F1d1F2d2KhM
    151/2"1521.6 7775120F03+F04363423910M120.6
    203/4"2027.2 8280120F03+F04363423910M120.7
    251"2534.0 9090140F04+F05423503.51112M141.1
    321 1/4"3242.8 95110140F04+F05423503.51112M141.6
    401 1/2"3848.6 104120190F05+F07503.5704.51415M182.5
    502"4960.5 112140190F05+F07503.5704.51415M183.7
    652 1/2"6476.3 120185230F05+F07503.5704.51415M187
    803"7690.0 132205260F07+F10704.51025.51718M2210
    1004"100116.0 160240300F07+F10704.51025.51718M2219